Property Description
Apartment 8E at the Alameda, a 1915 architectural gem on the Northwest corner of 84th and Broadway in the heart of the UWS, is an immaculately renovated three bedroom home with light, views, and wonderful, functional space. A home with historic appeal but beautifully modernized and designed for today's lifestyle.
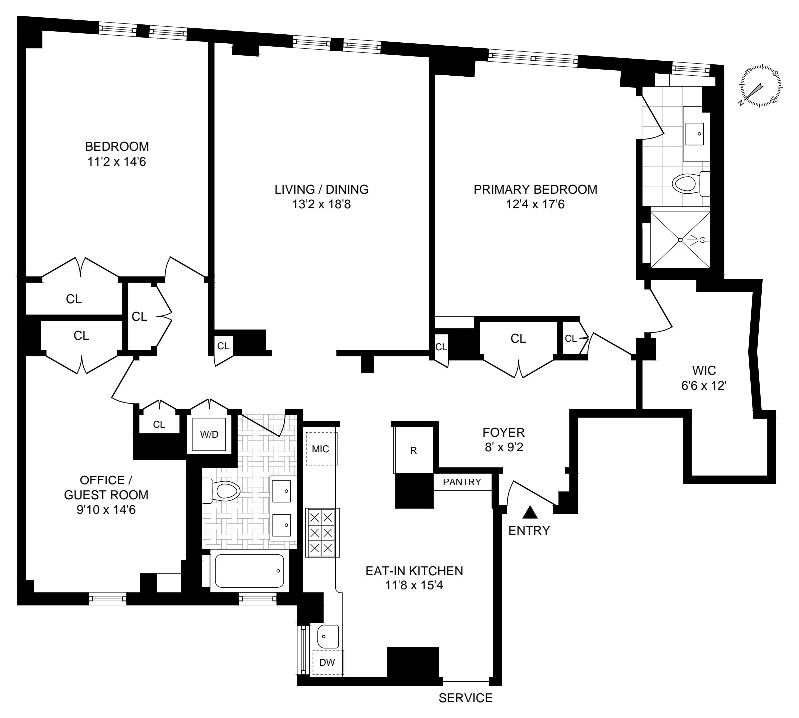
A proper entry foyer greets you upon entering the home. A dramatic, 30-foot long hall/gallery space beckons you with natural light to the cheerful living/dining room overlooking Broadway and the dramatic cityscape beyond from the 9th floor. In open communication with the stunningly designed 12 15 foot, windowed eat-in suburban kitchen with comfortable dining for 8. Sleek, white cabinetry is elegantly framed by azure glass subway tile. Charcoal granite counters and buff stone floors are timelessly classic. A 6-burner Thermador range and oven, full-size, French door LG refrigerator with built in water filter, and Bosch dishwasher are essential for the modern day home chef. A floor to ceiling pantry provides storage for all of your necessities. Proving that the kitchen is truly the heart of the home- serve pancakes for eight with space and warmth to spare.
The central hall discreetly leads to the bedroom wing for two ample bedrooms, one easily sharable with bright Broadway views- four closets including linen and essentials, and full-size Samsung washer and separate full-size Samsung dryer. A pristine and cheerful windowed guest or hall bath features a bathtub, dual vanities and medicine cabinets, charming wainscoting, and basket-weave patterned marble flooring.
Ideally situated on the south end of this thoughtfully designed home is the spacious, king-sized primary suite, featuring two sunshine-filled, east-facing windows, a crisp, modern windowed bath with dual head step-in shower. Within this glorious room is a 6 12 foot walk-in closet- with room for a designated desk- and custom built to accommodate a major wardrobe and shoe collection.
Throughout this home - such details emerge as stunning solid oak flooring, recessed lighting, silky smooth walls, baseboard and crown molding, and soaring high ceilings. Every aspect of the infrastructure of this meticulous home was renovated, ensuring a clean, solid framework- designed with classic, yet modern comfort in mind.
The Alameda, circa 1915, was built by visionary architect Gaetan Ajello and is known to be one of the most distinctive and handsome buildings of this era featuring glazed terracotta, limestone base and design elements and a double height marble lobby. Ajello's buildings are well-loved for their scale, presence and grace, and the Alameda is a wonderful example. Ideally located on 84th Street between Broadway and West End Avenue, the Alameda is situated in the heart of the vibrant Upper West Side surrounded by parks, top ranked public and private schools, shopping, revered specialty markets, casual and formal dining, and public transportation. Residents appreciate a full-time doorman and porter, live-in superintendent, sumptuously landscaped roof deck with both Hudson and Central Park views, and bike room - New Gym.
75% financing and pets are permitted
A proper entry foyer greets you upon entering the home. A dramatic, 30-foot long hall/gallery space beckons you with natural light to the cheerful living/dining room overlooking Broadway and the dramatic cityscape beyond from the 9th floor. In open communication with the stunningly designed 12 15 foot, windowed eat-in suburban kitchen with comfortable dining for 8. Sleek, white cabinetry is elegantly framed by azure glass subway tile. Charcoal granite counters and buff stone floors are timelessly classic. A 6-burner Thermador range and oven, full-size, French door LG refrigerator with built in water filter, and Bosch dishwasher are essential for the modern day home chef. A floor to ceiling pantry provides storage for all of your necessities. Proving that the kitchen is truly the heart of the home- serve pancakes for eight with space and warmth to spare.
The central hall discreetly leads to the bedroom wing for two ample bedrooms, one easily sharable with bright Broadway views- four closets including linen and essentials, and full-size Samsung washer and separate full-size Samsung dryer. A pristine and cheerful windowed guest or hall bath features a bathtub, dual vanities and medicine cabinets, charming wainscoting, and basket-weave patterned marble flooring.
Ideally situated on the south end of this thoughtfully designed home is the spacious, king-sized primary suite, featuring two sunshine-filled, east-facing windows, a crisp, modern windowed bath with dual head step-in shower. Within this glorious room is a 6 12 foot walk-in closet- with room for a designated desk- and custom built to accommodate a major wardrobe and shoe collection.
Throughout this home - such details emerge as stunning solid oak flooring, recessed lighting, silky smooth walls, baseboard and crown molding, and soaring high ceilings. Every aspect of the infrastructure of this meticulous home was renovated, ensuring a clean, solid framework- designed with classic, yet modern comfort in mind.
The Alameda, circa 1915, was built by visionary architect Gaetan Ajello and is known to be one of the most distinctive and handsome buildings of this era featuring glazed terracotta, limestone base and design elements and a double height marble lobby. Ajello's buildings are well-loved for their scale, presence and grace, and the Alameda is a wonderful example. Ideally located on 84th Street between Broadway and West End Avenue, the Alameda is situated in the heart of the vibrant Upper West Side surrounded by parks, top ranked public and private schools, shopping, revered specialty markets, casual and formal dining, and public transportation. Residents appreciate a full-time doorman and porter, live-in superintendent, sumptuously landscaped roof deck with both Hudson and Central Park views, and bike room - New Gym.
75% financing and pets are permitted
Overview
Property Type
Condo
Location
255 W 84TH Street 8E, New York City, NY 10024
MLS ID
RLS10979079
Listing Last Updated
Property Features & Amenities
Interior
Total Bedrooms
3
Full Bathrooms
2
Appliances
Washer Dryer Allowed
Other Interior Features
Smoke Free
Exterior
Stories
13
Air Conditioning
Other
Other Exterior Features
Building Roof Deck
Details
Neighborhood
Upper West Side
View Description
City
Financial
Price
$1,800,000
Common Charges
$3,965/mo
Exclusive Listing Agents